KONSULTACJE SPOŁECZNE
Burmistrz Zakroczymia zawiadamia o rozpoczęciu konsultacji społecznych projektu miejscowego planu zagospodarowania przestrzennego części obrębu 0005 Janowo w gminie Zakroczym
Pełną treść ogłoszenia można pobrać tutaj – https://zakroczym-api.bip.net.pl/api/attachments/7112
Konsultacje prowadzone będą w dniach od 10.03.2026 r. do 08.04.2026 r.
Wszystkie niezbędne dokumenty dot. konsultacji społecznych dostępne są pod linkiem: https://zakroczym.bip.net.pl/kategorie/321-projekt-miejscowego-planu-zagospodarowania-przestrzennego-czesci-obrebu-0005-janowo-w-gminie-zakroczym/artykuly/2637-konsultacje-spoleczne?lang=PL
Rysunek projektu planu:
——————————————————————————————————————————————————————————————————–
Burmistrz Zakroczymia zawiadamia o rozpoczęciu konsultacji społecznych projektu miejscowego planu zagospodarowania przestrzennego części obrębu 0014 Trębki Nowe w gminie Zakroczym
Pełną treść ogłoszenia można pobrać tutaj – https://zakroczym-api.bip.net.pl/api/attachments/6706
Konsultacje prowadzone będą w dniach od 31.10.2025 r. do 01.12.2025 r.
Wszystkie niezbędne dokumenty dot. konsultacji społecznych dostępne są pod linkiem: https://zakroczym.bip.net.pl/kategorie/103-projekt-miejscowego-planu-zagospodarowania-przestrzennego-czesci-obrebu-0014-trebki-nowe-w-gminie-zakroczym/artykuly/1032-konsultacje-spoleczne?lang=PL
Rysunek projektu planu:
——————————————————————————————————————————————————————————————————–
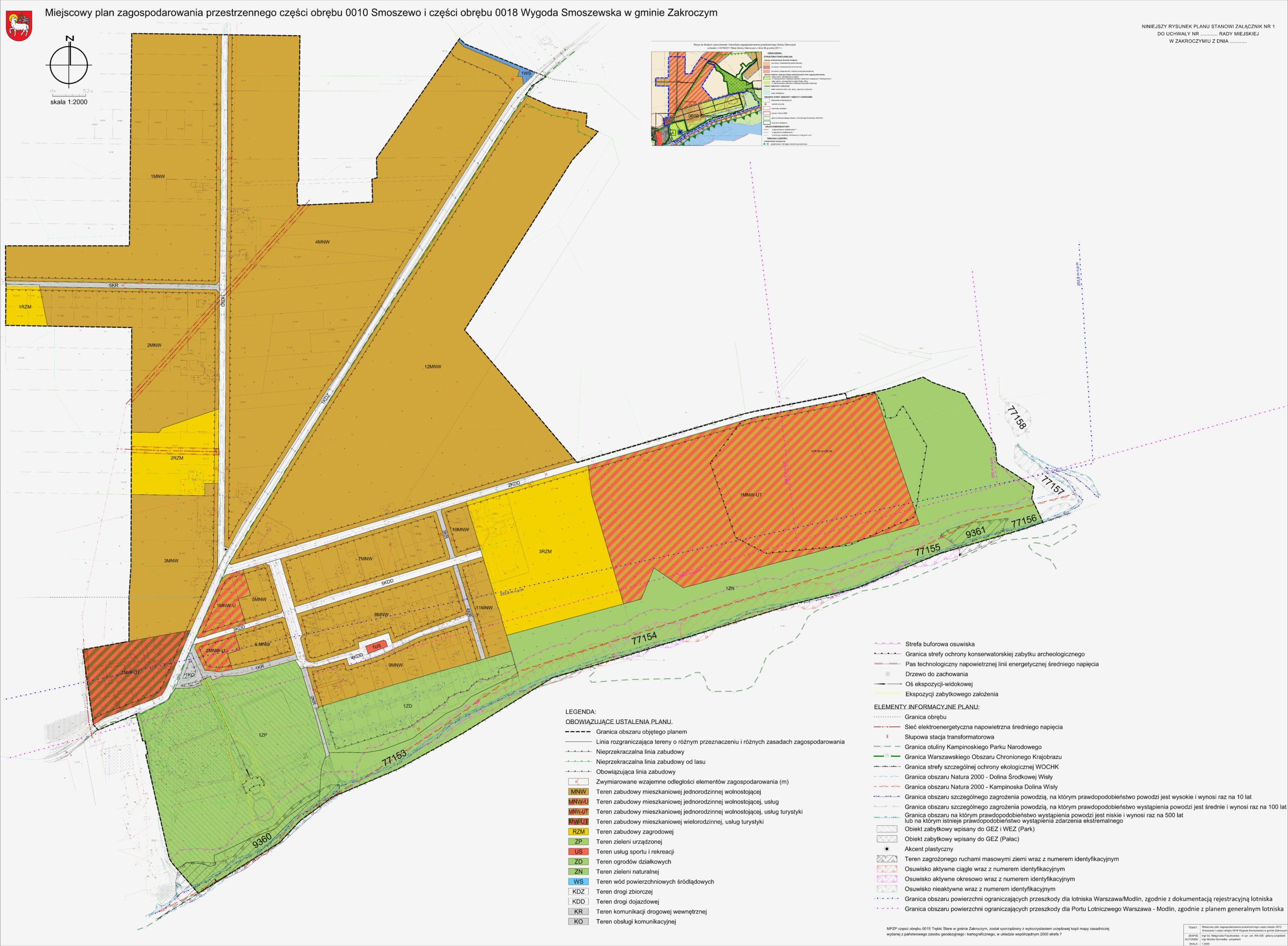
Burmistrz Zakroczymia zawiadamia o rozpoczęciu konsultacji społecznych projektu miejscowego planu zagospodarowania przestrzennego części obrębu 0010 Smoszewo i części obrębu 0018 Wygoda Smoszewska w gminie Zakroczym
Pełną treść ogłoszenia można pobrać tutaj – https://zakroczym-api.bip.net.pl/api/attachments/6714
Konsultacje prowadzone będą w dniach od 31.10.2025 r. do 03.12.2025 r.
Wszystkie niezbędne dokumenty dot. konsultacji społecznych dostępne są pod linkiem: https://zakroczym.bip.net.pl/kategorie/101-projekt-miejscowego-planu-zagospodarowania-przestrzennego-czesci-obrebu-0010-smoszewo-i-czesci-obrebu-0018-wygoda-smoszewska-w-gminie-zakroczym/artykuly/1040-konsultacje-spoleczne?lang=PL
Rysunek projektu planu:
——————————————————————————————————————————————————————————————————–
Burmistrz Zakroczymia zawiadamia o rozpoczęciu konsultacji społecznych projektu miejscowego planu zagospodarowania przestrzennego części obrębu 0015 Trębki Stare w gminie Zakroczym
Pełną treść ogłoszenia można pobrać tutaj – https://zakroczym-api.bip.net.pl/api/attachments/6648
Konsultacje prowadzone będą w dniach od 13.10.2025 r. do 13.11.2025 r.
Wszystkie niezbędne dokumenty dot. konsultacji społecznych dostępne są pod linkiem: https://zakroczym.bip.net.pl/kategorie/102-projekt-miejscowego-planu-zagospodarowania-przestrzennego-czesci-obrebu-0015-trebki-stare-w-gminie-zakroczym/artykuly/1036-konsultacje-spoleczne?lang=PL
Rysunek projektu planu:
——————————————————————————————————————————————————————————————————–
Burmistrz Zakroczymia zawiadamia o rozpoczęciu konsultacji społecznych projektu miejscowego planu zagospodarowania przestrzennego w rejonie trasy S7 w mieście Zakroczym.
Pełną treść ogłoszenia można pobrać tutaj – OGŁOSZENIE o przeprowadzeniu konsultacji społecznych projektu miejscowego planu zagospodarowania przestrzennego w rejonie trasy S7 w mieście Zakroczym.
Konsultacje prowadzone będą w dniach od 08.08.2025 r. do 05.09.2025 r.
Wszystkie niezbędne dokumenty dot. konsultacji społecznych dostępne są pod linkiem: https://zakroczym.bip.net.pl/kategorie/331-konsultacje-spoleczne/artykuly/3385-konsultacje-spoleczne?lang=PL
Rysunek projektu planu:
NOWY RODZAJ AKTU PLANOWANIA PRZESTRZENNEGO
Reforma planowania przestrzennego wprowadziła obligatoryjny dokument pod nazwą „Plan ogólny”, który sporządzają wszystkie gminy i zastępuje obecny dokument „Studium uwarunkowań i kierunków zagospodarowania przestrzennego” zwany w skrócie „Studium”.
Plany ogólne gmin mają zostać sporządzone do końca 2025 roku. Po upływie tego terminu sporządzanie miejscowych planów, zmiana obowiązujących planów miejscowych i wydawanie decyzji o warunkach zabudowy będzie niemożliwe.
Obowiązujące miejscowe plany zagospodarowania pozostają w mocy obowiązywania, wydane decyzje o warunkach zabudowy nie stracą ważności.
Gmina Zakroczym przystąpiła do prac związanych z przygotowaniem planu ogólnego. Do dnia 29 listopada 2024 r. można składać wnioski do planu ogólnego. Po przygotowaniu projektu planu ogólnego i przeprowadzeniu uzgodnień i opinii z instytucjami zostaną przeprowadzone konsultacje społeczne. O terminach konsultacji będziemy informować na stronach internetowych i obwieszczeniach w gazecie i na tablicach ogłoszeń danych miejscowości.
PLAN OGÓLNY GMINY ZAKROCZYM
Plan ogólny to nowy dokument planistyczny, uchwalany dla całego obszaru gminy Zakroczym, który do końca 2025 roku zastąpi Studium uwarunkowań i kierunków zagospodarowania przestrzennego. Plan ogólny będzie wyznaczał ramy rozwoju gminy, ustalenia w nim zawarte będą wiążące zarówno dla miejscowych planów jak i decyzji o warunkach zabudowy.
Ten dokument ma być w założeniu bardziej przystępny dla mieszkańców i posiadać ujednoliconą formę dla całego kraju. Nie będą tu wyznaczane kierunki rozwoju gminy, tak jak to miało miejsce w studium lecz gmina zostanie podzielone na strefy planistyczne, dla których zostaną określone podstawowe parametry urbanistyczne.
DO WYBORU BĘDZIE 13 STREF PLANISTYCZNYCH
SW – strefa wielofunkcyjna z zabudową mieszkaniową wielorodzinną
SJ – strefa wielofunkcyjna z zabudową mieszkaniową jednorodzinną
SZ – strefa wielofunkcyjna z zabudową mieszkaniową zagrodową
SU – strefa usługowa
SH – strefa handlu wielkopowierzchniowego
SP – strefa gospodarcza
SR – strefa produkcji rolniczej
SI – strefa infrastrukturalna
SC – strefa cmentarzy
SG – strefa górnictwa
SO- strefa otwarta
SK – strefa komunikacyjna
Dla każdej strefy planistycznej ustawodawca określił profil podstawowy i profil dodatkowy, jak również minimalny udział powierzchni biologicznie czynnej z wyłączeniem strefy SG, SO, SK
Dla każdej strefy zostaną ustalone PARAMETRY ZABUDOWY I ZAGOSPODAROWANIA TERENU w postaci:
– maksymalnej nadziemnej intensywności zabudowy – oznacza stosunek sumy powierzchni kondygnacji nadziemnych budynków zlokalizowanych na działce budowlanej do powierzchni tej działki budowlanej,
– maksymalnego udziału powierzchni zabudowy – oznacza stosunek sumy powierzchni rzutu poziomego budynków, mierzonej po zewnętrznym obrysie rzutu poziomego ścian zewnętrznych tych budynków zlokalizowanych na działce budowlanej do powierzchni tej działki budowlanej,
– maksymalnej wysokości – to różnica pomiędzy wysokością najwyżej położonego punktu budynku na dachu , ścianie lub attyce, z wyłączeniem komina, nadbudówki mieszczącej maszynownię dźwigu lub innego pomieszczenia technicznego oraz wyjścia z klatki schodowej, a średnią wysokością najniższego poziomu terenu mierzona na obwodzie rzutu poziomego ścian zewnętrznych budynku,
– minimalnej powierzchni biologicznie czynnej(przy czym nie mniejsza niż wynika to z właściwego rozporządzenia) – to teren zapewniający naturalną wegetację roślin i retencję wód opadowych i roztopowych, teren pokryty ciekami lub zbiornikami wodnymi, z wyłączeniem basenów rekreacyjnych i przemysłowych, a także 50 % powierzchni tarasów i stropodachów oraz innych powierzchni zapewniających naturalną wegetację roślin, o powierzchni nie mniejszej niż 10 m2.
Jak złożyć wniosek do planu ogólnego?
Procedura sporządzania projektu planu ogólnego będzie składać się m.in. z etapu składania wniosków, konsultacji społecznych, opinii i uzgodnień projektu.
Do 29 listopada 2024 r. jest możliwość składania przez mieszkańców wniosków do planu ogólnego. Wnioski można składać wyłącznie na formularzu zgodnym z rozporządzeniem Ministra Rozwoju i Technologii.
Formularz jest dostępny na stronie: https://zakroczym.bip.net.pl/kategorie/264-gospodarka-przestrzenna/artykuly/205-akt-planowania-przestrzennego?lang=PL
Termin przyjmowania wniosków do 29 listopada 2024 r.
Obowiązkowe elementy wniosku:
- Imię i nazwisko wnioskodawcy
- Adres zamieszkania
- Informacje o własności nieruchomości
- Adres poczty elektronicznej (o ile wnioskodawca posiada)
- Treść wniosku ( w ramach 13 stref + ewentualnie 4 wskaźniki urbanistyczne)
- Czytelny podpis i data
Wnioski złożone po terminie pozostają bez rozparzenia.
Wszelkie informacje na temat planu ogólnego i obowiązujących planów miejscowych i projektach planów miejscowych można znaleźć na niżej wymienionych stronach:
https://zakroczym.bip.net.pl/kategorie/90-gospodarka-przestrzenna?lang=PL
https://zakroczym.pl/urzad-gminy/
Przeglądanie planów miejscowych gminy Zakroczym jest dostępne na stronie https://zakroczym.e-mapa.net/
W górnym prawym rogu można wprowadzić nr działki i zostanie oznaczony teren działki przybliżony obszar ze wskazaniem terenu na którym dana działka jest położona. W okienku „Informacja o obiekcie” w zakładce „plany miejscowe” możemy pobrać i otworzyć uchwałę dotyczącą planu miejscowego.
Wszelki informacje o obowiązujących planach miejscowych oraz planach w trakcie sporządzania są dostępne na stronie: https://zakroczym.bip.net.pl/kategorie/90-gospodarka-przestrzenna?lang=PL w zakładce „gospodarka przestrzenna”.









